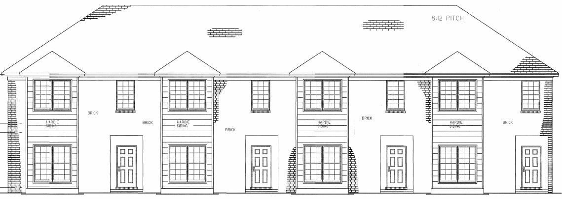
A rendering of one of the five buildings proposed for Isabell’s Court at the intersection of Carnahan Court and Club Manor Drive.
The Maumelle Planning Commission deferred a planned, five-building complex at the intersection of Carnahan Court and Club Manor Drive at its meeting last week.
At the request of developer Daryl Brock, of Daryl Brock Custom Homes of Conway, the development was deferred and a motion to table until the June meeting was approved by the Planning Commission.
Planning Commission meetings in Maumelle are held on the last Thursday of the month, and the meeting would be held June 24.
The proposed development has been dubbed as “Isabell’s Court” and it will cover 1.74 acres with five, two-story buildings, plus parking and each building will feature five units for a total of 25. Each unit would be 1,320 square feet with two floors. The living room and kitchen on the first floor and two bedrooms and a bathroom on the second floor.
The property is zoned as Residential-3, or R-3, and that allows “for the highest resident population in the city” and “may contain structures at a density of up to 35 dwelling units per gross acre.”
Maumelle: Planned development deferred
The Maumelle Planning Commission deferred a planned, five-building complex at the intersection of Carnahan Court and Club Manor Drive at its meeting last week.
At the request of developer Daryl Brock, of Daryl Brock Custom Homes of Conway, the development was deferred and a motion to table until the June meeting was approved by the Planning Commission.
Planning Commission meetings in Maumelle are held on the last Thursday of the month, and the meeting would be held June 24.
Paid subscriptions make this reporting possible
Subscribe if you like, pay if you can
The proposed development has been dubbed as “Isabell’s Court” and it will cover 1.74 acres with five, two-story buildings, plus parking and each building will feature five units for a total of 25. Each unit would be 1,320 square feet with two floors. The living room and kitchen on the first floor and two bedrooms and a bathroom on the second floor.
The property is zoned as Residential-3, or R-3, and that allows “for the highest resident population in the city” and “may contain structures at a density of up to 35 dwelling units per gross acre.”